
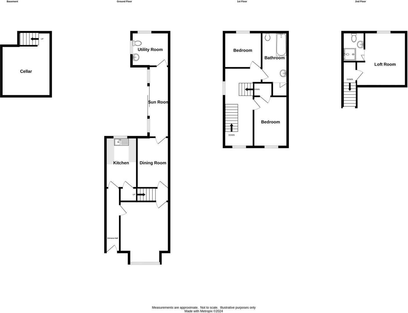
Composite front door with Glazed panel fitted. Access to kitchen and lounge. With gas central heating radiator to inside elevation.
With Window to the front elevation and radiator to front elevation and gas fire with surround feature.
With radiator to inside elevation wall.
Having space for a washer, dryer and under counter fridge freezer. Large cupboard space and radiator to side elevation.
Having sliding glazed doors to rear garden and access to the utility/w.c and radiator to side elevation.
Having windows to side and rear elevation. Appliance space, toilet fitted and sink with unit space built in and radiator to side wall.
Having window to front and side elevation and radiator to front elevation.
Having radiator to the front elevation and built in cupboard space.
Partially tiled with bath fitted with shower head, toilet and sink fitted and Large cupboard space housing a baxi boiler. Having an obscured window to the rear elevation and radiator fitted to side elevation.
Having a window and radiator fitted to the front elevation.
Having windows to the front and side elevation and a radiator to the front elevation.
Having a window and radiator to the rear elevation.
Having electric heater fitted, electric shower fitted and
Having an access door from the garden and windows to side and rear elevation.
All Main Services are connected (Gas, Electric, Water)
Broadband/Mobile coverage- please check on link -//checker.ofcom.org.uk/en-gb/broadband-coverage
Council Tax Band:C
Tenure Information: Freehold
Any Other Material Facts:
All information provided by the vendor please confirm all details with a chosen solicitor.