Hicks Hadley

Offers In The Region Of £255,000
Sold Subject to Contract Freehold

Whittingham Road, Halesowen

3 2 1

Key Features

  • SPACIOUS LOUNGE
  • SEPARATE DINING ROOM
  • KITCHEN WITH PANTRY
  • GARAGE WITH UTILITY SECTION
  • THREE GENEROUSLY SIZED BEDROOMS
  • FIRST FLOOR SHOWER ROOM
  • LARGE PRIVATE REAR GARDEN
  • BLOCK PAVED DRIVEWAY
  • POPULAR LOCATION
  • EPC: D
  • Council Tax Band: C

Summary

**NO UPWARD CHAIN**
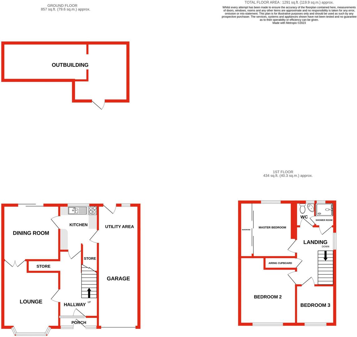
A fantastic three bedroom semi-detached property in this most popular of locations for schools, transport links and all local amenities. The property briefly comprises: modern porch, reception hall, spacious lounge, separate dining room, kitchen with pantry, three generously sized bedrooms and shower room to first floor. The property further benefits from: a large private rear garden, block paved driveway and long garage with utility options at the rear. SUNNY ASPECT REAR GARDEN. VERY POPULAR ROAD. EARLY VIEWING HIGHLY RECOMMENDED. GREAT OPTION FOR FIRST TIME BUYERS OR UPSIZERS. EPC: D

Porch

With central heating radiator, double glazing to side elevation, double glazing to front elevation and obscured double glazed door into:

Reception Hall

With central heating radiator, walk in storage cupboard, stairs to first floor and doors into:

Spacious Lounge (4.04m x 3.58m (max))

With central heating radiator, double glazed bay window to front elevation and French doors into:

Separate Dining Room (3.23m x 3.18m)

With central heating radiator, double glazed patio door into garden and door into:

Kitchen (3.18m x 2.34m (max))

Having wall and base units with worktops over to incorporate one and a half bowl drainer sink unit, gas hob, integrated oven, wall mounted Ideal boiler, double glazed window to rear elevation, door into pantry with side window, door into reception hall and door into garage.

Landing

With storage cupboard, loft hatch, obscured double glazed window to side elevation and doors into:

Bedroom One (3.96m x 3.78m (max))

With central heating radiator and double glazed window to front elevation.

Bedroom Two (3.78m x 3.23m (max into wardrobe))

With central heating radiator, integrated wardrobes and double glazed window to rear elevation.

Bedroom Three (2.31m x 2.29m)

With central heating radiator and double glazed window to front elevation.

Shower Room

Having shower cubicle, low flush wc, wash hand basin, two central heating radiators and two obscured double glazed windows to rear elevation.

Garage (7.42m x 2.44m)

Having electric roller shutter entrance door, space for dryer, plumbing for automatic washing machine, space for fridge/freezer, obscured window to rear elevation and obscured glazed door into garden.

Outside

Front: With block paved driveway leading to front door and garage entrance door.

Rear: Having patio area leading to flower bed, right hand pathway with adjacent long lawn and decorative stone features to the other side with wide shed to the rear boundary.

Agents Note

All main services are connected (gas/water/electric).

Broadband/Mobile coverage- please check on link -//checker.ofcom.org.uk/en-gb/broadband-coverage

EPC: D

Tenure information: FREEHOLD

COUNCIL TAX BAND: C



Follow Hicks Hadley on Facebook Follow Hicks Hadley on Instagram Follow Hicks Hadley on Twitter
;